TAG 标签:重庆室内高尔夫 | 杭州室内高尔夫 | 大连模拟高尔夫 | 长春室内高尔夫 | 广州室内高尔夫 | 安徽室内高尔夫 | 哈尔滨模拟高尔夫 | 上海模拟高尔夫 | 厦门模拟高尔夫球馆安装
三亚室内高尔夫品牌哪家好啊 | 长沙室内高尔夫 |

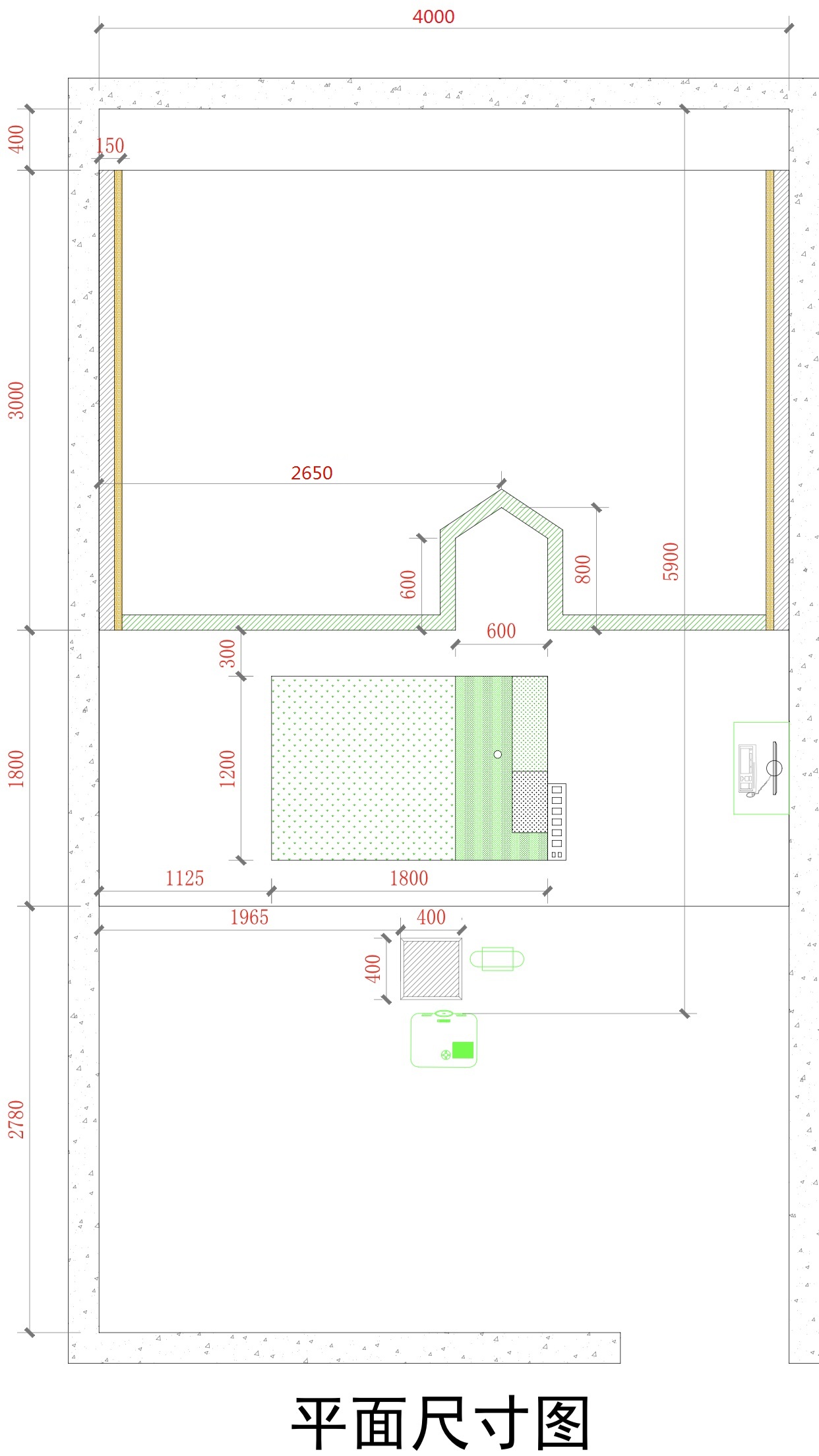
室内高尔夫模拟器设备装修详细现场施工图:

室内高尔夫设备安装装修图和电路布置图:

TAG 标签:重庆室内高尔夫 | 杭州室内高尔夫 | 大连模拟高尔夫 | 长春室内高尔夫 | 广州室内高尔夫 | 安徽室内高尔夫 | 哈尔滨模拟高尔夫 | 上海模拟高尔夫 | 厦门模拟高尔夫球馆安装
三亚室内高尔夫品牌哪家好啊 | 长沙室内高尔夫 |

室内高尔夫模拟器设备装修详细现场施工图:

室内高尔夫设备安装装修图和电路布置图:
